Camponogara 09/04/2026
- Prezzo
- 60.000 €
- Contratto:
- Vendita
- Mq:
- 500
Descrizione
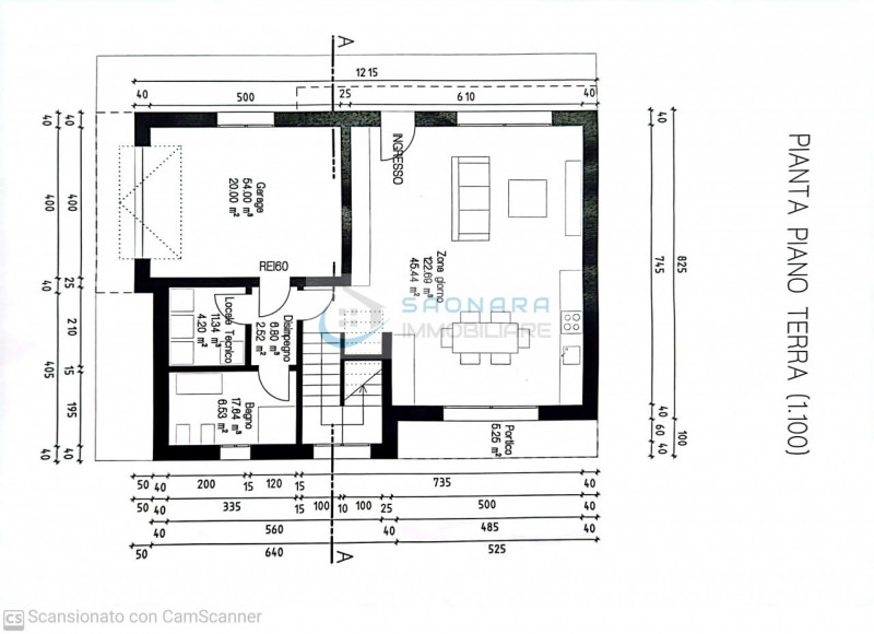
CAMPONOGARA: Su recente urbanizzazione, dove è prevista esclusivamente la costruzione di villette unifamiliari, in zona tranquilla appena fuori del centro, proponiamo lotto edificabile di 500 mq circa dove è possibile una singola di 160 mq circa di superficie netta di pavimento. Si può ricavare una unità con soggiorno, cucina, 3 camere, 2 o 3 bagni, garage. E' possibile acquistare anche un secondo lotto edificabile confinante. L'area è già urbanizzata e collaudata, pronta per la presentazione dei progetti. In ufficio disponiamo di proposte progettuali "pilota" che possono essere visionate e ricalibrate su misura in base alle esigenze del cliente. RICORDIAMO A TUTTI I CLIENTI CHE LA NOSTRA AGENZIA E' A VOSTRA DISPOSIZIONE PER OFFRIRVI GRATUITAMENTE UNA CONSULENZA E VALUTAZIONE COMMERCIALE DEL VOSTRO IMMOBILE. Il presente annuncio è indicativo e non costituisce vincolo o presupposto contrattuale. Tutte le misure riportate devono considerarsi indicative. N.B. per motivi di privacy, l'indirizzo e il puntatore nella mappa sono indicativi e non corrispondono all'ubicazione esatta dell’immobile. --- annuncio pubblicato con GESTIONALEIMMOBILIARE.it
- Collina: No
- Impianto illuminazione: No
- Impianto elettrico: Non definito
- Latitudine: 45.37367
- Pannelli fotovoltaici: No
- Aria condizionata: No
- Camino: No
- Numero vetrine: 0
- Impianto anti incendio: No
- Categoria immobile: Terreno terreno edificabile residenziale
- Impianto geotermico: No
- Terrazzi: 0
- Aree esterne: No
- Contratto: Vendita
- Lavanderia: No
- Cantina: No
- Taverna: No
- Terme: No
- Camere: 0
- Riscaldamento centralizzato: No
- Banchine di carico: 0
- Lago: No
- Piano terra: No
- Numero portoni: 0
- Asta: No
- Nuovo: No
- Predisposizione aria condizionata: No
- Soffitta: No
- Stato manutenzione: Sconosciuto
- Arredo: No
- Carro ponte: No
- Grezzo: No
- Allacciamento fognatura: No
- Giardino condominiale: No
- Numero locali: 0
- UM IPE: kWh/m2anno
- Piscina: No
- Montagna: No
- Poggioli: 0
- Longitudine: 12.06857
- Panorama: Non indicato
- Connettività: Nessuna
- Ribalte: No
- Piano semi interrato: No
- Primo piano: No
- Piano numero: 0
- Soggiorno: No
- Mare: No
- Garage doppio: No
- Posizione: Sconosciuto
- Rif. agenzia: CAMPN1003
- Mansarda: No
- Ultimo piano: No
- Piano intermedio: No
- Riscaldamento autonomo: No
- Ripostigli: 0
- Pannelli solari: No
- Predisposizione allarme: No
- Totale piani: 0
- Saracinesche: 0
- Piano interrato: No
- Riscaldamento a pavimento: No
- Canna fumaria: No
- Cucina: No
- Vendita: Sì
- Numero accessi carrai: 0
- Ingresso indipendente: No
- Zona: Camponogara
- Ascensore: No
- Giardino: No
- Classe energetica: Non soggetto a Certificazione
- Allarme: No
- Bagni: 0
- Soggiorno con angolo cottura: No
- Garage: No
- Posto auto: No
- Affitto: No
- Cabina elettrica: No
- APE: ape2015 (classe: NS, unità kWh: kWh/m2anno)
- Urbanizzato: No
- Piano rialzato: No
- Montacarichi: 0
- Campagna: No
- Immobile di prestigio: No
- IPE: 0.00
