Modena 05/03/2026
- Prezzo
- 32.000 €
- Contratto:
- Affitto
- Tipologia:
- Magazzino
- Classe energetica:
- G
- IPE:
- 0
Descrizione
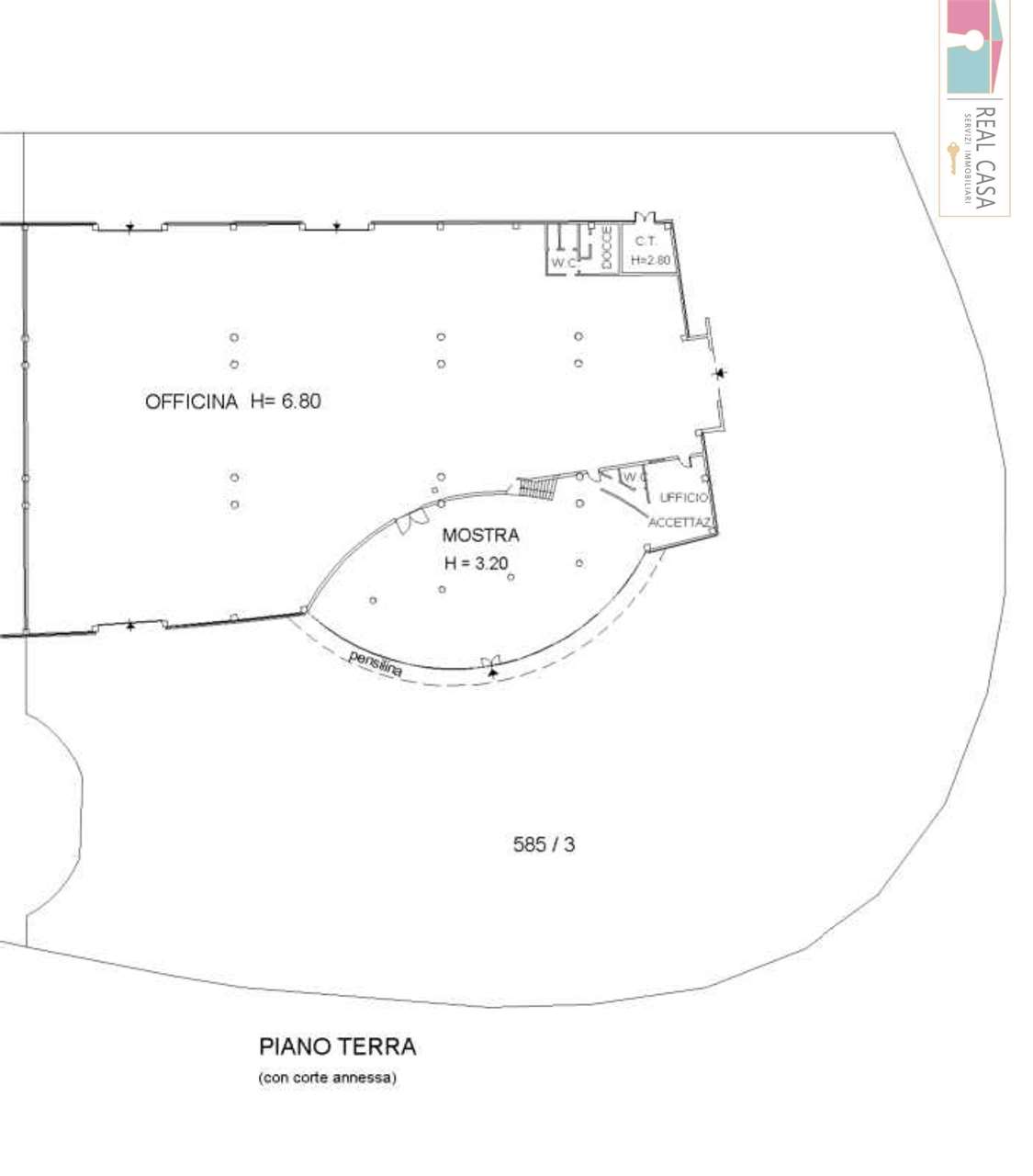
Rif. Annuncio: AY582 COMPLESSO MODERNO AD USO ARTIGIANALE IN LOCAZIONE CON AMPIA AREA CORTILIVA DI PERTINENZA. TRE SUBALTERNI ATTACCATI E DISPONIBILI IN PARTE DA GIUGNO 2026 IN PARTE DA FINE 2026 MODENA OVEST: Immediate vicinanze Stabile Caprari, si propone un complesso (categoria catastale D7) di stampo moderno su lotto di proprietà asfaltato che gira sui quattro lati. Possibilità di affitto parziale o in toto. Soluzione ideale per grandi aziende del settore automobilistico, automotive, ceramico, idraulico/elettrico, meccanico ecc. Per privacy non sono state inserite volutamente immagini. Richiesta per l'intera metratura EURO 32.000 + IVA. PORZIONE DISPONIBILE DA GIUGNO: PIANO TERRA Magazzino/Capannone di 980 m2 openspace con 4 portoni di accesso sui due lati, H. interna 6,80; troviamo inoltre n.1 Ufficio ed un ripostiglio Salone Espositivo di 430 m2 collegato internamente attualmente suddivido da pareti amovibili e servizi di pertinenza PIANO PRIMO Uffici per metraura 290 m2 con sale riunioni, vari ambienti e doppi servizi PIANO PRIMO SOTTOSTRADA Autorimessa openspace di 415 m2 PORZIONE DISPONIBILE DA FINE 2026: n.1 Capannone/Magazzino di 2000 m2 suddiviso in tre campante h. interna 6,80, doppi servizi, un ufficio e 6 Portoni di accesso da due lati n.1 Capannone/Magazzino openspace di 1700 m2 con servizi e 4 portoni di accesso + uffici e sala mostra su due livelli di 600 m2 Codice riferimento: AY582 REAL CASA 059 2929690 www.realcasamodena.it CLASSE ENERGETICA: G
- Anno costruzione: 0
- N. piani edificio: 2
- Panorama: Vista Aperta
- Tipo di contratto: 6+6 Anni
- Rif. agenzia: AY582_M03G05
- Cauzione: Fidejussione
- Destinazione: Artigianale
