Milano 19/02/2026
- Prezzo
- Trattativa riservata
- Contratto:
- Vendita
- Tipologia:
- Altro
- IPE:
- 0,00 kw/mc
Descrizione
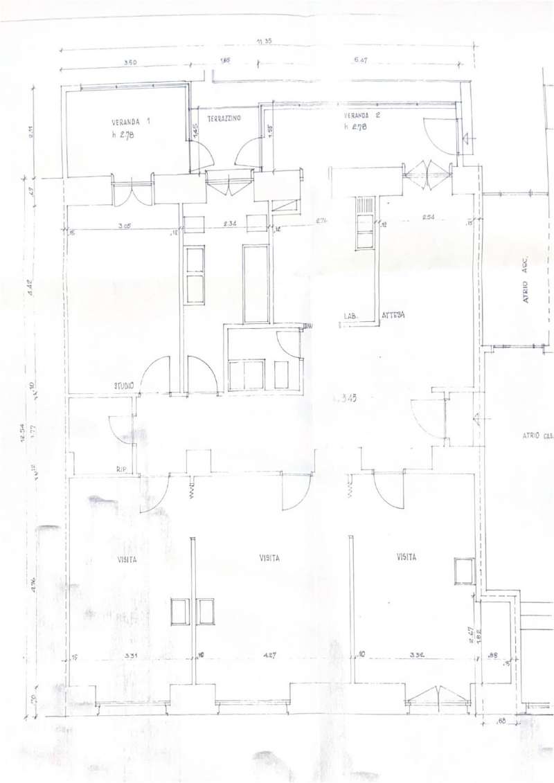
P.zza della Repubblica - a pochissimi metri dalla fermata MM proponiamo in stabile signorile con servizio di portineria, ampio ufficio al piano rialzato di 6 locali e servizi, attualmente adibito a studio medico con tre sale visita, sala d'aspetto con reception, studio, laboratorio, 2 bagni, ripostiglio, due verande e terrazzino. Ottimo per vari utilizzi, in posizione di assoluto prestigio, possibile trasformazione in residenziale. Il Gruppo Immobiliare Passaretti nasce nel 1986 dalla passione del suo fondatore Luca Passaretti, che vive la professione con uno slancio che lo rende costantemente attuale ed adeguato. Grazie alle sue vulcaniche idee, in quasi 40 anni, l'azienda ha sperimentato e testato con successo strutture e tecniche lavorative innovative ed efficaci, facendo proprio il motto rapidi e sicuri. Passacase Srl, l'agenzia immobiliare del Gruppo, è in grado di offrire il meglio degli immobili di prestigio, residenziali, commerciali, industriali e turistici. Uno dei punti di forza del Nostro Gruppo è senza dubbio la strategia di condivisione del prodotto. Collaboriamo infatti coi migliori brand del settore immobiliare. Dal 2018, il Gruppo Passaretti fa parte del circuito REplat MLS, il primo sistema per la collaborazione tutelata tra agenti immobiliari per vendere subito e bene il tuo immobile in tutta Italia. Dal 2020 siamo ufficialmente affiliati a Frimm. i dati e le foto presenti nell'annuncio sono meramente indicativi, non costituiscono vincolo contrattuale e possono subire modificazioni.
- Pavimento cucina: 0
- Costruzione: Signorile
- Pavimento soggiorno: 0
- Anno di costruzione: 1950
- Rif. agenzia: lpcodrep28
- Infissi esterni: 0
- Esposizione interna: NO
- Pavimento bagno: 0
- N. piani: Non Specificato
- N. piani edificio: 11
- Spese condominiali: 350.00 mensili
- Pavimento camera: 0
- Portiere: SI
