Villastellone 11/12/2025
- Prezzo
- 550 €
Descrizione
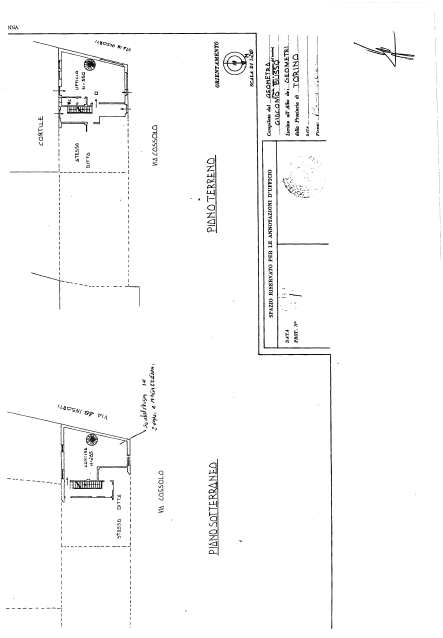
Questo locale commerciale, con una superficie totale di 90 mq, offre ampie possibilità di personalizzazione e si presta a diverse configurazioni. Sia che tu stia cercando uno spazio per un negozio al dettaglio o per uno studio professionale, questo immobile saprà soddisfare le tue esigenze. Situato al piano terra, il locale è composto da due vani vendita luminosi e accoglienti grazie alle grandi vetrine fronte strada che non solo garantiscono un'illuminazione naturale abbondante ma offrono anche ottima visibilità ai tuoi clienti. Al piano interrato troverai ulteriori due vani collegati tra loro, ideali come magazzino o uffici privati. --- annuncio pubblicato con GESTIONALEIMMOBILIARE.it
- Collina: No
- Impianto illuminazione: No
- Impianto elettrico: Non definito
- Latitudine: 44.9235415
- Pannelli fotovoltaici: No
- Aria condizionata: No
- Camino: No
- Numero vetrine: 0
- Impianto anti incendio: No
- Categoria immobile: Attivita commerciale
- Impianto geotermico: No
- Terrazzi: 0
- Aree esterne: No
- Contratto: Affitto
- Lavanderia: No
- Cantina: Sì
- Taverna: No
- Terme: No
- Camere: 0
- Riscaldamento centralizzato: No
- Banchine di carico: 0
- Lago: No
- Piano terra: Sì
- Numero portoni: 0
- Asta: No
- Nuovo: No
- Predisposizione aria condizionata: No
- Soffitta: No
- Stato manutenzione: Sconosciuto
- Arredo: No
- Carro ponte: No
- Grezzo: No
- Allacciamento fognatura: No
- Giardino condominiale: No
- Numero locali: 0
- UM IPE: kWh/m3anno
- Piscina: No
- Montagna: No
- Poggioli: 0
- Longitudine: 7.7441408
- Panorama: Non indicato
- Connettività: Nessuna
- Ribalte: No
- Piano semi interrato: No
- Primo piano: No
- Soggiorno: No
- Mare: No
- Garage doppio: No
- Posizione: Sconosciuto
- Mansarda: No
- Ultimo piano: No
- Piano intermedio: No
- Riscaldamento autonomo: Sì
- Ripostigli: 0
- Pannelli solari: No
- Predisposizione allarme: No
- Saracinesche: 0
- Piano interrato: Sì
- Riscaldamento a pavimento: No
- Canna fumaria: No
- Cucina: No
- Vendita: No
- Numero accessi carrai: 0
- Ingresso indipendente: No
- Zona: Villastellone - Centro
- Ascensore: No
- Giardino: No
- Classe energetica: In fase di definizione
- Allarme: No
- Bagni: 0
- Soggiorno con angolo cottura: No
- Garage: No
- Posto auto: No
- Affitto: Sì
- Cabina elettrica: No
- APE: ape2015 (classe: ND, unità kWh: kWh/m3anno)
- Urbanizzato: No
- Piano rialzato: No
- Montacarichi: 0
- Campagna: No
- Immobile di prestigio: No
- IPE: 0.00
