Milano 07/04/2026
- Prezzo
- Trattativa riservata
- Contratto:
- Vendita
- Mq:
- 320
- Libero:
- Libero al rogito
- Stato:
- 3
- Locali:
- Oltre 5 locali
- Bagni
- 4
- Cucina:
- Abitabile
- Piano:
- Quarto
- Riscaldamento:
- Centralizzato
- IPE:
- 175,00 kwh/mq
Descrizione
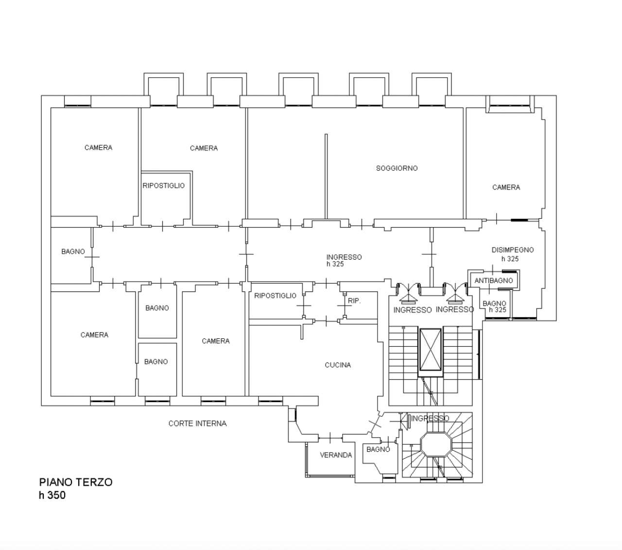
Abbondio San Giorgio VINCENZO MONTI PRESTIGE® 02.43980296 Tel 347.4013254 vedi tutte le ns. proposte sul sito vincenzomontiprestige(.it) - attaccato al Parco Bompiani Vergani (Parco Pallavicino) e non lontano dall'Arco della Pace, proponiamo con incarico in esclusiva il vero appartamento di rappresentanza, posto all'ultimo piano (intero piano) di Stabile d'epoca, con sale d'ingresso e corridoi (come si dovrebbero avere ndr) in pregiato seminato veneziano Fantini. Internamente crediamo sia uno dei migliori tagli in pianta avuti da vendere. Epoca, ultimo piano, spazi di rappresentanza, piantina tagliata bene, ottima esposizione, box di proprietà nello stabile. Sul mercato non ci sono mai disponibili proposte simili. Internamento composto da salone, pranzo, grande cucina abitabile, CINQUE camere da letto, cinque bagni, lavanderia, ripostigli, balconcini d'affaccio, cantina e box ampio 6mt x 3mt ed alto 3,40 mt anche per meccanismo per due autovetture. Zona giorno tutta affacciata a Sud. Soffitti alti ben 3,50 mt. Indiscutibilmente tra i piu' belli della zona. Il palazzo esclusivo, in quanto composto di soli 8 appartamenti, è dei primi '900 completamente restaurato. Trattative riservate. Le ns schede sui vari motori di ricerca sono caricate con un applicativo generico, pertanto taluni elementi descrittivi potrebbero in alcuni casi differire da quanto effettivo. Invitiamo, pertanto, a verificare le caratteristiche dell'immobile, soggetto cmq a variazioni e modifiche descrittive, precisazioni e correzioni. Pertanto le stesse, contenuto e piantine non potranno avere valore contrattuale. VINCENZO MONTI Energy Division. MILAN AGENCY Vincenzo Monti Prestige Srl Via Vincenzo Monti 26 20123 Milano Tel. +39.02.463972 monti@vincenzomontiprestige.it vincenzomontiprestige.com - Specializzati da oltre 25 anni nel Quadrilatero, C.so Magenta, Vincenzo Monti, curiamo i Vostri appartamenti con la massima attenzione che meritano. Selezioniamo immobili in vendita e locazione per i nostri gentili Clienti. Vincitori premio Capital "Best 2016 - Successi Emergenti" (Classeditori). Think Prestige! VINCENZO MONTI PRESTIGE® International Real Estate. Specializzati nei downtown di Venezia, New York, Miami, Londra e Parigi. Da 25 anni con passione! MILANO Vincenzo Monti 26 VENEZIA San Polo 2598 NEW YORK 300 Kent Brooklyn MIAMI South Beach 1000 5th Street LONDON 28 Charing Cross PARIS 100 Quai de la Rapée
- Pavimento cucina: Ceramica
- Costruzione: Epoca
- Pavimento soggiorno: Parquet
- Anno di costruzione: 1900
- Rif. agenzia: Attico attiguo Parco
- Infissi esterni: Doppio vetro / Legno
- Esposizione interna: SI
- Condizionatore: SI
- N. balconi: 5
- N. ascensori: 1
- Pavimento bagno: Ceramica
- N. piani: Non Specificato
- Box auto: Singolo
- N. piani edificio: 4
- Spese condominiali: 1200.00 mensili
- Pavimento camera: Parquet
- Portiere: SI
