Milano 13/02/2026
- Prezzo
- Trattativa riservata
- Contratto:
- Vendita
- Mq:
- 102
- Libero:
- Libero al rogito
- Stato:
- 3
- Locali:
- Trilocale
- Bagni
- 1
- Cucina:
- Cucinino / Cucinotto
- Piano:
- Quarto
- Riscaldamento:
- Centralizzato
- IPE:
- 178,29 kwh/mq
Descrizione
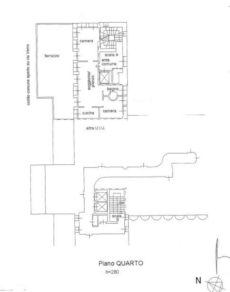
AD. ZE BOCCONI/SCALO ROMANA esattamente in via Bernardino Verro, in un contesto signorile recente (con portineria) e aree comuni esclusive, con sala fitness e piscina, proponiamo un luminoso Attico con un terrazzo di 80 mq , vivibile e perfetto per trascorrere piacevoli momenti con famiglia e amici. L' appartamento ( di mq 80) in ottime condizioni si sviluppa con ampia zona living composta da soggiorno e cucinotto da cui si accede al terrazzo, da due camere (di cui una matrimoniale) e da un bagno con doccia. La soluzione è dotata di impianti centralizzati di aria condizionata e riscaldamento di nuova generazione (con conta calorie) e di sistema di allarme. L'immobile si completa di un box al piano S1 (collegato con l'ascensore) a 38.000,00 a parte. La zona dove dove è inserito l'immobile è strategica tra l'università Bocconi, l'area di Fondazione Prada e dello Scalo Romana e ben collegata con i principali mezzi di superficie, tram 24 (che collega al centro/Duomo), bus 90/91, 95, 65, dal passante ferroviario fermata Tibaldi e non lontano dalle fermate M.M. P.le Lodi (linea gialla), Romolo (linea verde) e ben servita da negozi, supermercati e scuole. Inoltre nella zona troviamo ampi spazi verdi per praticare attività sportive all' aperto. Per maggiori informazioni LINEA CASA MILANO NAVIGLI, via E.Torricelli 10 - 20136 Milano, mobile +39 3346698575 anche whatsapp - mi.navigli@linecasare.it - T.0289423519
- Pavimento cucina: Ceramica
- Costruzione: Signorile
- Pavimento soggiorno: Ceramica
- Rif. agenzia: N20
- Infissi esterni: Doppio vetro / Metallo
- Esposizione interna: SI
- Giardino condominiale: SI
- Condizionatore: SI
- N. terrazzi: 1 (80 mq)
- Pavimento bagno: Ceramica
- Piscina: SI
- N. piani: Non Specificato
- Box auto: Singolo
- N. piani edificio: 4
- Spese condominiali: 380.00 mensili
- Pavimento camera: Ceramica
- Portiere: SI
