Roccarainola 24/04/2026
- Prezzo
- Trattativa riservata
- Contratto:
- Vendita
- Mq:
- 113
- Libero:
- Libero
- Stato:
- 5
- Locali:
- Oltre 5 locali
- Bagni
- 2
- Cucina:
- Abitabile
- Piano:
- Terzo
- Riscaldamento:
- Autonomo
- IPE:
- 111,00 kwh/mq
Descrizione
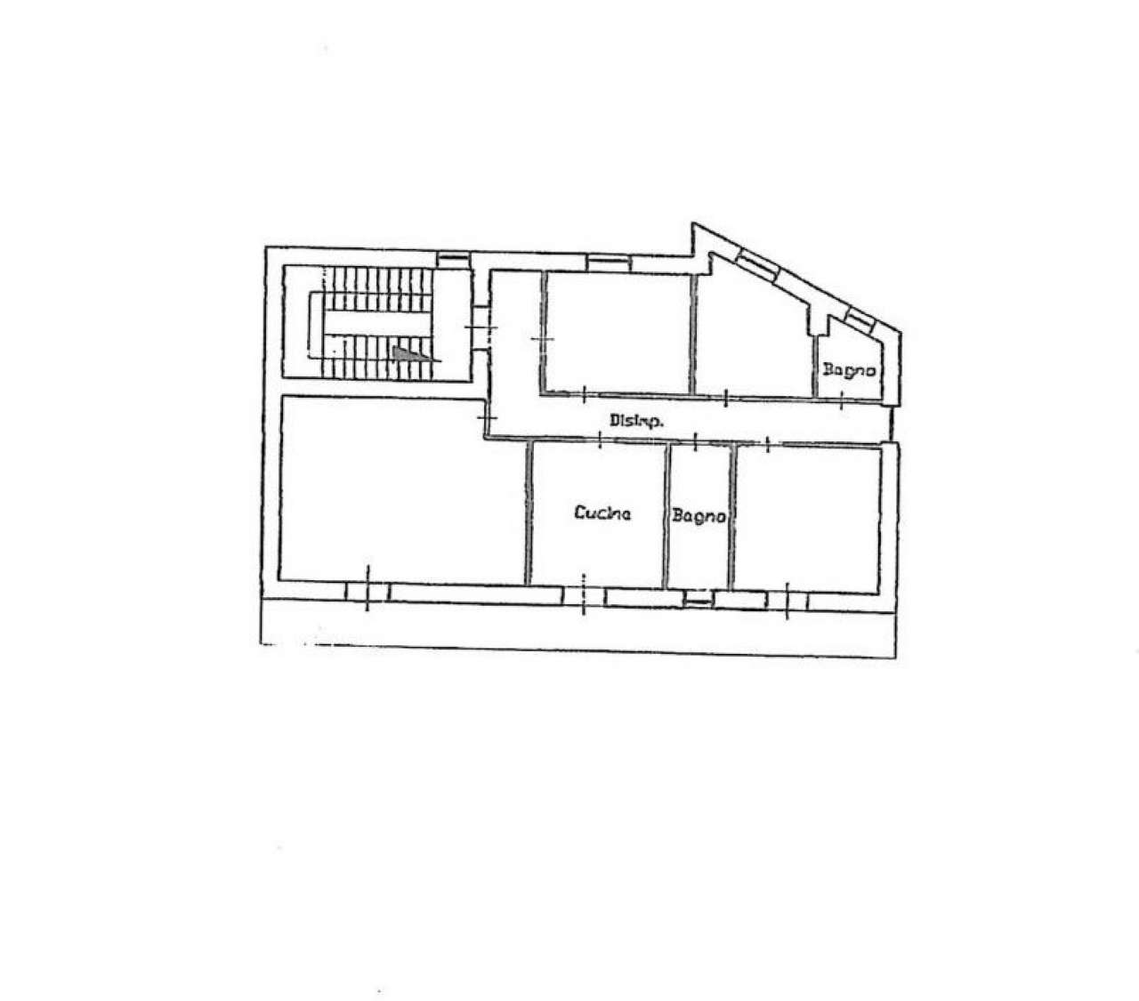
In zona centrale e residenziale, nel comune di Roccarainola, Progetto Casa, propone in vendita, appartamento con terrazzo esclusivo, posto al piano terzo ed ultimo di uno stabile tranquillo, senza ascensore. Stato interno da rimodernare. L'immobile proposto ha una metratura interna di mq113, oltre ampia balconata con affaccio fronte strada. Internamente è suddiviso come segue: -Ingresso, salone, cucina abitabile, ampio corridoio, N.3 vani notte e doppio accessorio. Di pertinenza: terrazzo esclusivo di mq 115 e vano cantina di mq10. Per maggiori informazioni e per organizzare un appuntamento non esitate a contattarci. Ci troviamo a Nola ( NA ) in P.zz Giacomo Matteotti n° 18. Visita il nostro sito : progettocasa.info I nostri recapiti sono : 0818231345 / 3290771439 ( whatsapp ) E-mail : areaprogettocasa@gmail.com
- Pavimento cucina: Ceramica
- Costruzione: Civile
- Pavimento soggiorno: Ceramica
- Rif. agenzia: ROCCARAINOLA 80K E-A
- Infissi esterni: 0
- Esposizione interna: SI
- N. balconi: 1
- N. terrazzi: 1 (115 mq)
- Pavimento bagno: Ceramica
- N. piani: Non Specificato
- N. piani edificio: 4
- Spese condominiali: 0.00 mensili
- Pavimento camera: Ceramica
