Milano 28/04/2026
- Prezzo
- Trattativa riservata
- Contratto:
- Vendita
- Mq:
- 100
- Libero:
- Libero al rogito
- Stato:
- 0
- Locali:
- Trilocale
- Bagni
- 2
- Cucina:
- Abitabile
- Piano:
- Quarto
- Riscaldamento:
- Autonomo a caldaia
- IPE:
- 0,00 kwh/mq
Descrizione
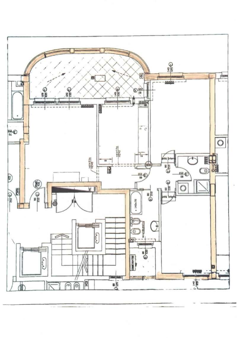
In moderno complesso condominiale, in contesto riservato e tranquillo, proponiamo ampio trilocale composto da ingresso su ampio soggiorno con terrazzo, cucina abitabile con pregiati arredi in muratura, disimpegno con ampia armadiatura, bagno padronale con vasca e balcone, 2 camere matrimoniali, bagno di servizio con doccia, cantina box a parte 35mila. L'appartamento è rifinito con materiali di pregio, pavimentazioni in gres e parquet, impianto di aria condizionata, infissi in legno e doppi vetri. Zona servitissima con Esselunga a 2 minuti a piedi, scuole, bar, ristoranti a portata di mano e comodissima per raggiungere la tangenziale Est. Il Gruppo Immobiliare Passaretti nasce nel 1986 dalla passione del suo fondatore Luca Passaretti, che vive la professione con uno slancio che lo rende costantemente attuale ed adeguato. Grazie alle sue vulcaniche idee, in quasi 30 anni, l'azienda ha sperimentato e testato con successo strutture e tecniche lavorative innovative ed efficaci, facendo proprio il motto rapidi e sicuri. Passacase Srl, l'agenzia immobiliare del Gruppo, è in grado di offrire il meglio degli immobili di prestigio, residenziali, commerciali,industriali e turistici. Uno dei punti di forza del Nostro Gruppo è senza dubbio la strategia di condivisione del prodotto. Collaboriamo infatti coi migliori brand del settore immobiliare. Dal 2018, il Gruppo Passaretti fa parte del circuito REplat MLS, il primo sistema per la collaborazione tutelata tra agenti immobiliari per vendere subito e bene il tuo immobile in tutta Italia.Dal 2020 siamo ufficialmente affiliati a Frimm. I dati e le foto presenti nell'annuncio sono meramente indicativi, non costituiscono vincolo contrattuale e possono subire modificazioni.
- Arredato: SI
- Pavimento cucina: Ceramica
- Costruzione: Medio - Signorile
- Pavimento soggiorno: Ceramica
- Anno di costruzione: 2005
- Rif. agenzia: lpcodcdmp11
- Infissi esterni: Doppio vetro / Legno
- Esposizione interna: SI
- Giardino condominiale: SI
- Condizionatore: SI
- N. ascensori: 1
- N. terrazzi: 1
- Pavimento bagno: Ceramica
- N. piani: Non Specificato
- Box auto: Singolo
- N. piani edificio: 7
- Spese condominiali: 200.00 mensili
- Pavimento camera: Parquet
- Portiere: SI
