Lurate Caccivio 19/11/2025
- Prezzo
- 400.000 €
- Contratto:
- Vendita
- Mq:
- 99
- Stato:
- In costruzione
- Locali:
- 3
- Bagni
- 2
- Cucina:
- A Vista
- Piano:
- 2
- Riscaldamento:
- Autonomo
- Classe energetica:
- VA
- IPE:
- 0
Descrizione
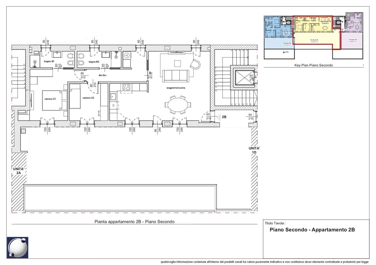
In nuova palazzina in fase di realizzazione posta nelle immediate vicinanze del centro cittadino e comoda con scuole, servizi e trasporti ma al tempo stesso inserito un ambiente tranquillo, proponiamo soluzione abitative di due, tre e quattro locali di varie metrature e accessori con la possibilità di autorimesse singole o doppie e cantine. Il tutto in un contesto dalle linee moderne con un impiantistica di ultima generazione e possibilità di scelte delle finiture da un capitolato di qualità. In questo annuncio ti vogliamo mettere in evidenza un appartamento al secondo ed ultimo piano composto da soggiorno con cucina a vista, cameretta, bagno, lavanderia e camera matrimoniale con bagno privato, tutti i locali principali hanno l'uscita sul terrazzo di oltre 90mq. Possibilità di modificare la disposizione interna ricavando un comodo quattro locali. Chiamateci per maggiori informazioni per questo per le altre soluzioni non ve ne pentirete. (Valore di Progetto in Classe Energetica da A1 a A4) CLASSE ENERGETICA: In fase di valutazione
- N. terrazzi: 1 (93 mq)
- Anno costruzione: 2025
- N. piani edificio: 3
- Arredato: Non Arredato
- N. camere: 2
- Rif. agenzia: Rif. 3999_2B
- Unità abitative condominio: 13
