Lurate Caccivio 19/11/2025
- Prezzo
- 460.000 €
- Contratto:
- Vendita
- Mq:
- 124
- Stato:
- In costruzione
- Locali:
- 4
- Bagni
- 3
- Cucina:
- A Vista
- Piano:
- 1
- Riscaldamento:
- Autonomo
- Classe energetica:
- VA
- IPE:
- 0
Descrizione
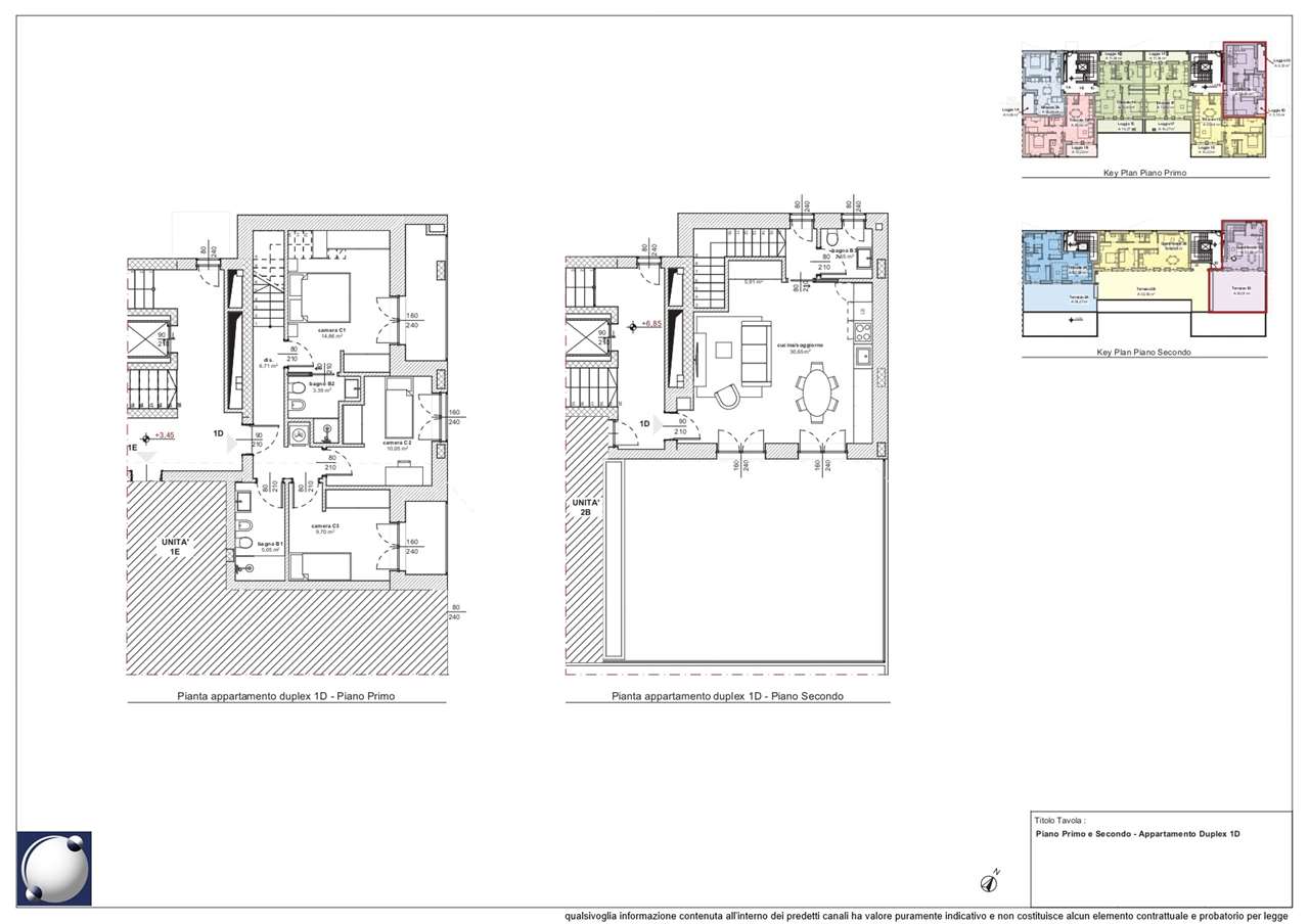
In nuova palazzina in fase di realizzazione posta nelle immediate vicinanze del centro cittadino e comoda con scuole, servizi e trasporti ma al tempo stesso inserito un ambiente tranquillo, proponiamo soluzione abitative di due, tre e quattro locali di varie metrature e accessori con la possibilità di autorimesse singole o doppie e cantine. Il tutto in un contesto dalle linee moderne con un impiantistica di ultima generazione e possibilità di scelte delle finiture da un capitolato di qualità. In questo annuncio ti vogliamo mettere in evidenza un particolare appartamento disposto su due livelli di quattro locali con cucina a vista, tre bagni, due balconi e un terrazzo di 60mq. Chiamateci per maggiori informazioni per questo per le altre soluzioni non ve ne pentirete. (Valore di Progetto in Classe Energetica da A1 a A4) CLASSE ENERGETICA: In fase di valutazione
- N. terrazzi: 1 (60 mq)
- Anno costruzione: 2025
- N. piani edificio: 3
- Arredato: Non Arredato
- Livelli Interni: 2
- N. camere: 3
- Rif. agenzia: Rif. 4499_1D
- Unità abitative condominio: 13
- N. balconi: 2 (9 mq)
