Genova 03/04/2026
- Prezzo
- Trattativa riservata
- Contratto:
- Vendita
- Mq:
- 134
- Libero:
- Libero al rogito
- Stato:
- 5
- Locali:
- 5 locali
- Bagni
- 2
- Cucina:
- Abitabile
- Piano:
- Primo
- Riscaldamento:
- Autonomo a caldaia
- IPE:
- 105,50 kwh/mq
Descrizione
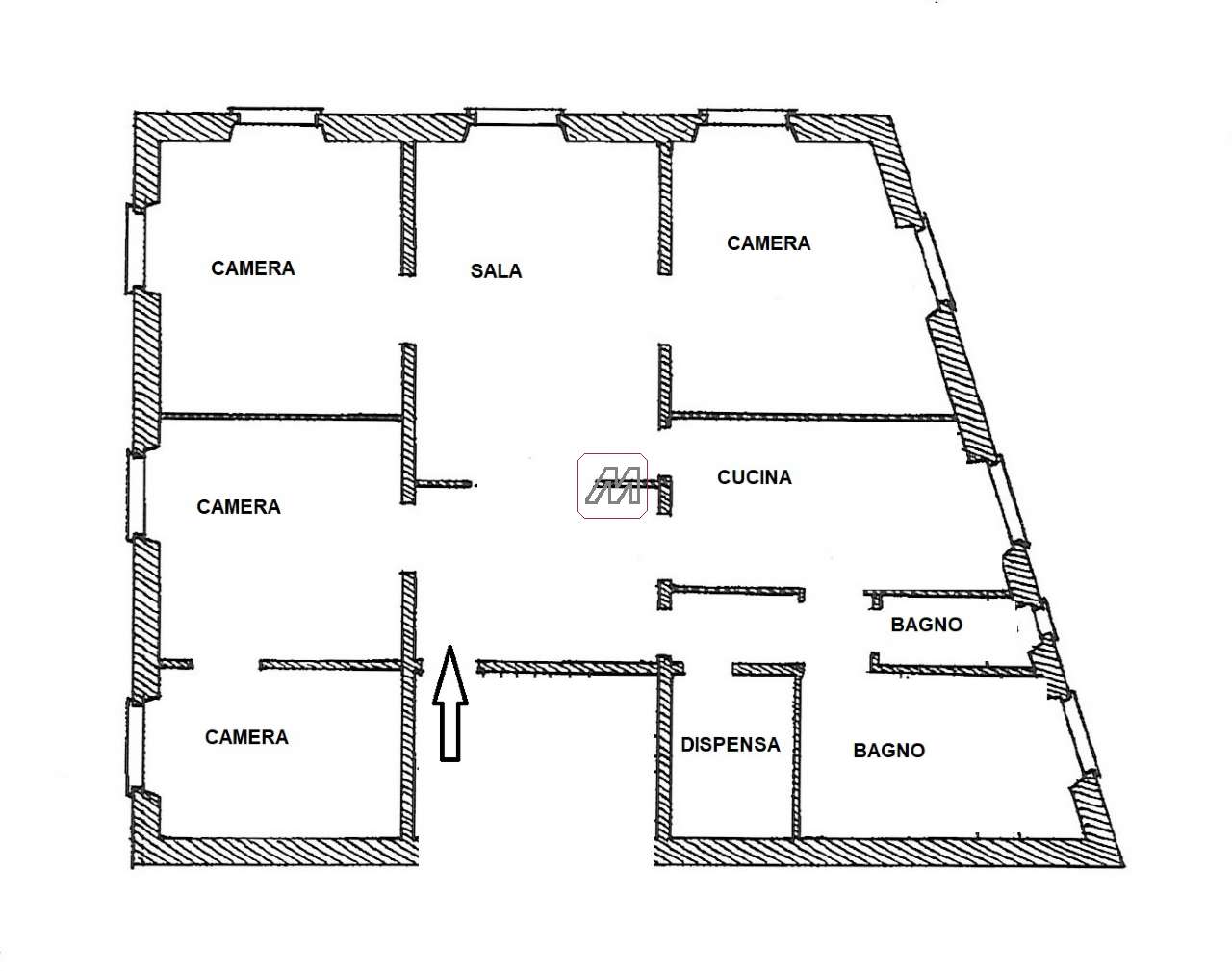
Cornigliano Appartamento in villa bifamiliare da ristrutturare Nel cuore di Cornigliano, in Via Gattorno, proponiamo in vendita un ampio appartamento in villa bifamiliare, con spazi generosi e grande potenziale di ristrutturazione. Limmobile si compone di un ingresso spazioso, un salone luminoso, quattro camere, una cucina abitabile, biservizi e una comoda dispensa. Completa la proprietà la metà del terrazzo soprastante e un posto auto allinterno del giardino condiviso, protetto da cancello carrabile, che garantiscono comfort, sicurezza e privacy. Situato in un contesto bello, tranquillo e riservato, lappartamento dispone di riscaldamento autonomo e non comporta alcuna spesa condominiale, rappresentando unoccasione unica per chi desidera creare la casa dei propri sogni in una zona centrale di Cornigliano, senza rinunciare alla tranquillità. Assolutamente da vedere! Se state pensando di vendere il vostro immobile, potete affidarci la vendita: offriamo valutazioni gratuite e senza impegno, accompagnandovi con esperienza e professionalità per ottenere il miglior risultato possibile sul mercato.
- Pavimento cucina: Cotto
- Costruzione: Epoca
- Pavimento soggiorno: Cotto
- Rif. agenzia: 26110
- Infissi esterni: Vetro semplice / Legno
- Esposizione interna: SI
- Posto auto scoperto: SI
- Giardino privato: 50 mq
- N. terrazzi: 1 (100 mq)
- Pavimento bagno: Ceramica
- N. piani: Non Specificato
- Box auto: No
- N. piani edificio: 2
- Video: Visita
- Spese condominiali: 0.00 mensili
- Pavimento camera: Cotto
